发布时间:2016-05-03 来源:凯威电气
110KV变电站铜绞线接地网制作
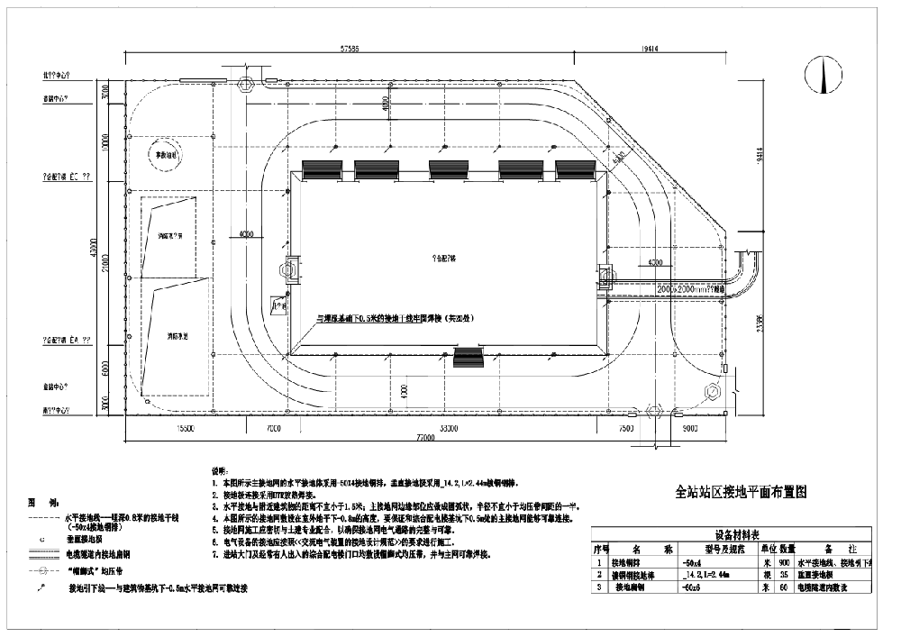
某110KV变电站采用150平方的铜绞线作为水平接地干线,垂直接地极采用直径17.2*4000的镀铜钢接地棒,外围接地网的四角深挖10米坑洞,分别安装上离子接地极(直径50*3000),设计要求接地电阻不大于0.5欧姆。我公司以精湛成熟的技术/高性价比,得到客户的认可,决定由我公司提供全站接地的相关材料,并提供施工技术指导。
设计图纸和施工图片如下:

铜绞线十字焊接(施工照片)如下:

铜绞线十字平行焊接图如下:

相关放热焊接介绍请查看网站:http://www.kwspd.cn/shows/11/
接地产品介绍如下:http://www.kwspd.cn/shows/14/
其他技术问题请联系凯威电气公司:0371-63760001
上一篇:35KV变电所30米避雷针安装
下一篇:19米钢管避雷针安装案例图
联系电话:0371-63760001
业务电话:13938510282